Heute
Aus Provisorium wird Providurium
Das Provisorium sollte nach dem Umbau des Globus eigentlich abgerissen werden. Da aber seit dem Globuskrawall die Nutzung des Gebäudes, bzw. des bebauten Areals politisch diskutiert wird, steht das Provisorium noch heute.
Seit 1968 wird das Provisorium bis heute als Filiale des Grossverteilers Coop und für Büros der Stadtpolizei und Stadtverwaltung benutzt. Es gab in den vergangenen Jahren etliche politische Vorstösse, um das ehemalige Provisorium endgültig abzureissen oder den Platz anderweitig zu nutzen. Der Mietvertrag mit dem Coop läuft Ende 2015 ab und kann bis spätestens 2019 verlängert werden. Danach sind die Tage des Providuriums definitiv gezählt.
Immer wieder regt das Papierwerd-Areal zu Fantasien an. 1993 schlägt der damalige Landesring den Bau eines 100 Meter hohen Hochhauses vor. Die SP schlägt vor, auf dem Areal ein Rathaus zu bauen. Auch ist das Grundstück im Gespräch für ein Kongresszentrum, Tourismuszentrum oder die Erweiterung des Landesmuseums. Der Verkehrsverein Zürich schlug ein mehrstöckiges Verkehrshaus vor mit Bädern, Coiffeur, Kleiderreinigung und Geldwechsel für Reisende, Billettverkauf und Information für Touristen sowie Räumen für ausländische Verkehrsbüros. Die Swissair plante ein Air Terminal. Ideen machten die Runde: für ein Hotel, ein Theater, ein Freizeitzentrum – oder einen Park, wie ihn die GLP jetzt wieder fordert. Keine Idee setzte sich durch. Am weitesten kam das Projekt «Haus im Fluss» für ein Begegnungs- und Informationszentrum. Es kam immerhin zur Volksabstimmung, wurde im Juni 1992 aber mit 60 Prozent Nein abgelehnt.


Die Grünliberalen haben im Gemeinderat verlangt, dass das Globus-Provisorium abgebrochen und das Papierwerd-Areal zu einem Park ausgebaut wird. Doch das lehnt der Stadtrat ab, hat doch Coop einen Vertrag bis 2015, der bis 2019 verlängert werden kann. Die Coopfiliale gehört mit täglich rund 6000 Kundinnen und Kunden zu seinen bestfrequentierten in der Schweiz gehört. Entsprechend zufrieden ist auch der Stadtrat, weil der Mietertrag «bei geringer Investition gut» sei. Quelle: Ausschnitt aus Tages-Anzeiger 4. Januar 2014 von Jürg Rohrer
Neugestaltung des Papierwerd-Areals
Der Stadtrat beantragt dem Gemeinderat für die Neugestaltung des Papierwerd-Areals und die Erarbeitung eines Nutzungskonzepts einen Projektierungskredit von 4,1 Millionen Franken.
Das Papierwerd-Areal bei der Bahnhofbrücke ist ein zentraler und wertvoller Stadtraum. Es beherbergt seit Jahrzehnten das Globusprovisorium, was wiederholt zu Vorstössen aus dem Gemeinderat führte, die eine Aufwertung des Areals verlangten. Im Februar 2013 wurde schliesslich eine Motion (GR Nr. 2013/49) eingereicht, die eine Neugestaltung des Areals sowie die Erarbeitung eines Nutzungskonzepts verlangte.
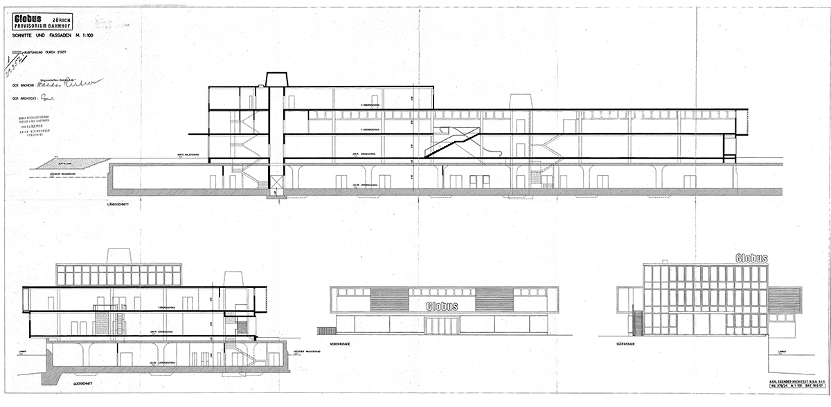
Der Stadtrat hat in der Folge eine Machbarkeitsstudie und auf deren Basis eine Vertiefungsstudie durchgeführt, in der verschiedene Varianten einer Neugestaltung durchgespielt wurden. Bei allen untersuchten Varianten wurde davon ausgegangen, dass das oberirdische Gebäude des Globus-Provisoriums einem offenen Platz mit einem Pavillon weichen soll. Im bereits heute bestehenden ersten Untergeschoss des Globus-Provisoriums soll ein Grossverteiler Platz erhalten, im zweiten Untergeschoss ein öffentliches Parkhaus. Dem Parkplatzkonzept zufolge könnte an der Oberfläche zusätzlicher Platz freigespielt werden, in dem ein Teil der Parkplätze von der Oberfläche in das Parkhaus verschoben werden. Der Mühlesteg soll an eine neue Lage verlegt und verbreitert werden. Um eine grössere Fläche zu erreichen, sieht die Bestvariante vor, die bestehende Unterführung unter der Bahnhofbrücke bis vor das Amtshaus II (Polizeiwache) zu verlängern.
Um städtebaulich, raumplanerisch und verkehrlich gute Lösungen auf dem Papierwerd-Areal zu finden, sollen ein Projektwettbewerb durchgeführt und anschliessend ein entsprechendes Vor- und Bauprojekt ausgearbeitet werden. Im Rahmen des Wettbewerbs soll nebst der Bestvariante auch eine Variantenkombination geprüft werden. Diese würde eine Umsetzung in zwei Schritten erlauben, indem zunächst die bestehende Unterführung erhalten bliebe und ein kleinerer Platz gestaltet würde. Später könnte dieses Projekt durch eine Verlängerung der Unterführung weiterentwickelt werden, um einen grösseren städtebaulichen Mehrwert zu erzielen.
Wenn der Gemeinderat dem Projektierungskredit von 4,1 Millionen Franken zustimmt, kann voraussichtlich 2021/2022 ein Bauprojekt vorgelegt und 2022/2023 mit dem Bau begonnen werden.
1. Februar 2018
Ausschnitt aus Medienmitteilung des Stadtrates vom 3. Juni 2009
Das Globus-Provisorium erfüllt heutige Sicherheitsstandards nur noch teilweise. Der Stadtrat hat deshalb statische und brandschutztechnische Massnahmen beschlossen und gebundene Ausgaben von 3,98 Millionen Franken bewilligt. Gleichzeitig wurde der Mietvertrag mit Coop bis 2015 verlängert. Die bevorstehenden baulichen Massnahmen stellen die Personensicherheit in den Untergeschossen und im Erdgeschoss wieder her und verbessern den baulichen Zustand des Gebäudes. Künftig führt ein zusätzliches Fluchttreppenhaus vom 2. Untergeschoss ins Erdgeschoss. Die Arbeiten werden zwischen Juli und Oktober 2009 ausgeführt. Gleichzeitig wird Coop seine Filiale im Spätsommer auffrischen. Dazu wurde der bestehende Mietvertrag bis 2015 verlängert.
© 2018 val&tin’s garden
Impressum/Datenschutz













